
Muller Hentz
En cours
Caractéristiques
Lieu :Forbach57
Type :Complexe mixte
Surface :3 100 m²
Missions :Architecte mandataire
Maître d'ouvrage :Privé
Maître d'oeuvre :Boehmer Architectes
Montant travaux :5 580 000 €
État du projet :Chantier en cours
A propos
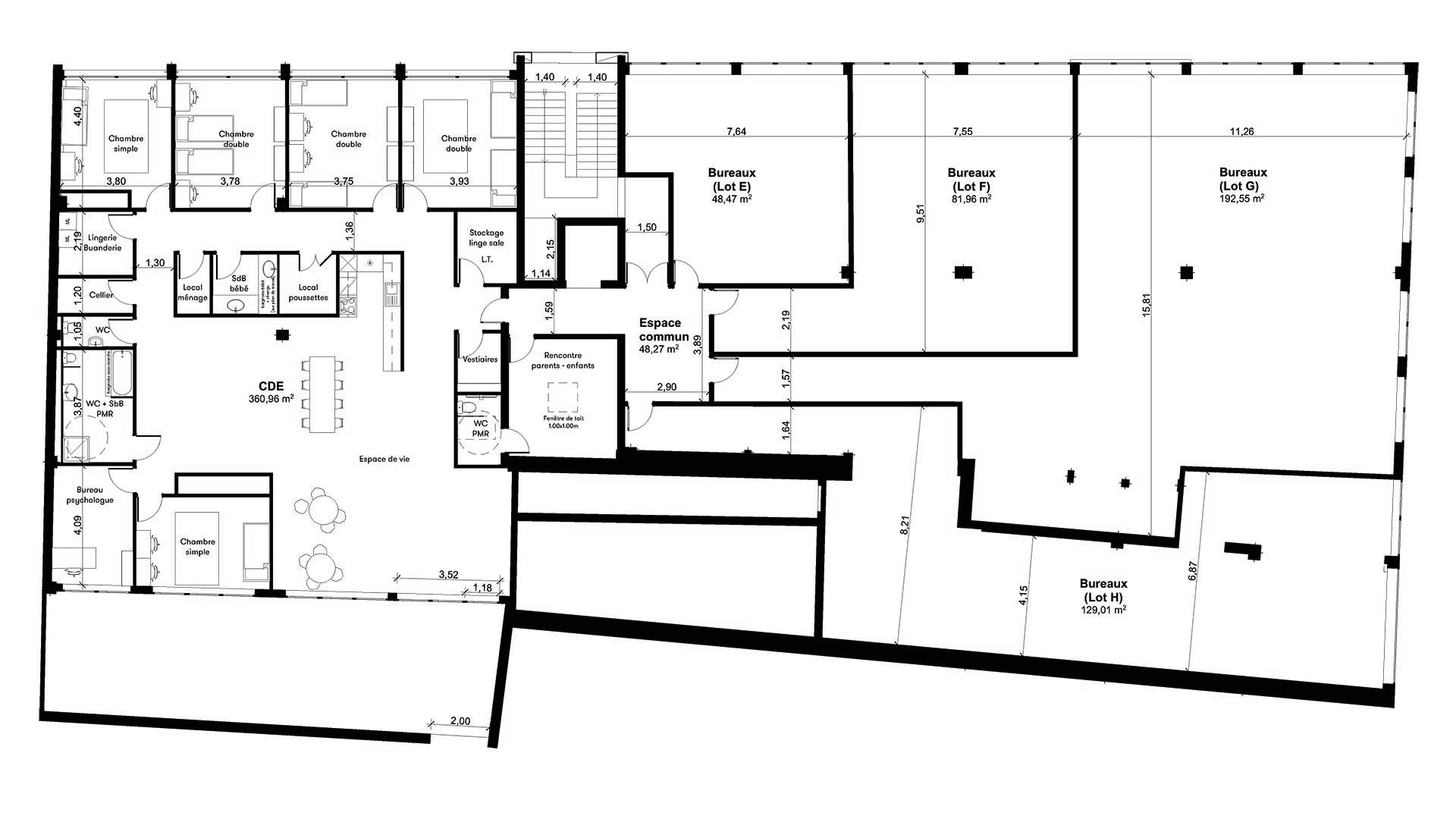
Restructuration de l'ancienne friche Muller Hentz à Forbach. Sur les trois bâtiments existants, deux bâtiments sont réhabilités pour accueillir un ensemble mixte d'activités et de logements. Le troisième bâtiment est démoli pour créer les stationnements nécessaires au fonctionnement de l'ensemble du complexe.
Le bâtiment principal d'activité accueille notamment une clinique ophtalmologique et un optictien au rez-de-chaussée, participant à la dynamisation de la ville. A l'étage, un local est dédié au centre départemental de l'enfance de la Moselle.
Ce local de 360 m² permet d'accueillir jusqu'à 10 enfants de 1 à 4 ans en situation d'urgence.


