
Micro-crèche Tanzanya - Forbach
Micro-crèche Tanzanya - Forbach
Caractéristiques
Lieu :Forbach57
Type :Micro-crèche
Surface :250 m²
Missions :Architecte mandataire (BASE + EXE + OPC + AOR)
Maître d'ouvrage :Privé
Maître d'oeuvre :Boehmer Architectes
Montant travaux :300 000 €
État du projet :Livré
A propos
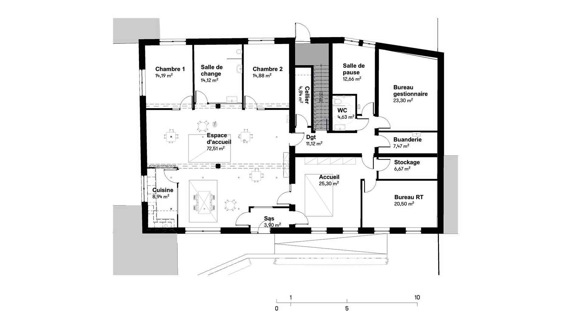
La restructuration complète du rez-de-chaussée d'un local d'activité à Forbach a permis la création d'une micro-crèche de 12 places.
La crèche est séparée en deux espaces depuis le sas de l'entrée : un espace dédié aux enfants et un dédié au personnel de la crèche. Dans l'espace des enfants, la cuisine, les deux salles de sommeil et la salle de change donne directement sur une généreuse salle de jeux et d'éveil. L'architecture veille à offrir aux enfants un espace protégé et ludique dont la surveillance est facilité en tout point par la présence de baies vitrées (vitrage sans tain pour la salle de change) et des oculus dans les portes.
Les enfants bénéficient également d'un grand espace extérieur pour les jeux en plein air.





01
03